←
→
產品詳情

工程竣工實拍圖
工程概述
項目:實驗室廢氣處理工程
甲方:廣州慧谷材料有限公司
施工單位:東莞市萬川環保工程有限公司
日期:2022年1月24日
廣州慧谷材料有限公司,位于廣州市黃埔區永和開發區新業路 62 號,主要從事有機化學原料制造。
工程介紹
一、前期調研
實驗室在進行材料的科研實驗時會產生有機廢氣,這些氣體雖然排放較小,但是都是高濃度的有毒有害氣體,如不及時進行廢氣處理,直接排放,會破壞周圍環境和人體健康。
萬川工程師團隊受邀前往慧谷材料實驗室進行了實地勘測,對場地和有機廢氣類型進行了充分分析記錄和討論,設計了一套適用于實驗室廢氣處理的系統方案,并獲得了客戶的充分認可。

工程竣工實拍圖
二、后期施工
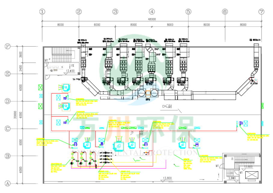
廢氣處理工藝
在廢氣處理上選用了活性炭吸附法,我們以活性炭作為吸附介質,廢氣通過活性炭吸附裝置,活性碳吸附有機揮發物,使其與氣體混合物分離,從而使氣體得到凈化。

工程竣工實拍圖

工藝流程簡圖
活性炭吸附法
效率高 | 投資小 | 操作方便

萬川工程師團隊在設計方案是采用了以下原則:
設備選型合理
減少運行成本
自動化程度高
牢固 美觀 可靠
安全 穩定 高效
符合國家標準

三、治理后
經萬川團隊治理后,污染物排放達到廣東省地方標準《家具制造行業揮發性有機化合物排放標準》(DB44/814-2010)第Ⅱ時段排放限值。
單位:mg/m3

落實質保措施,用效果贏得客戶信任,確保每項質量施工都能達到制定要求。讓質量監控無空白點。

工程竣工實拍圖
工程選用設備
活性炭吸附塔

0769-22627330
服務熱線:0769-22627330
聯系電話:15876993318
公司傳真:0769-22627660
公司郵箱:dgwanchuan@126.com
公司地址:廣東省東莞市東城區牛山新村寶慶工業園B區






0769-22627330